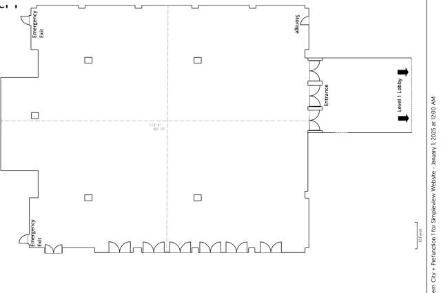
Level 1

Level 2

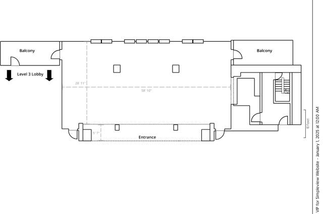
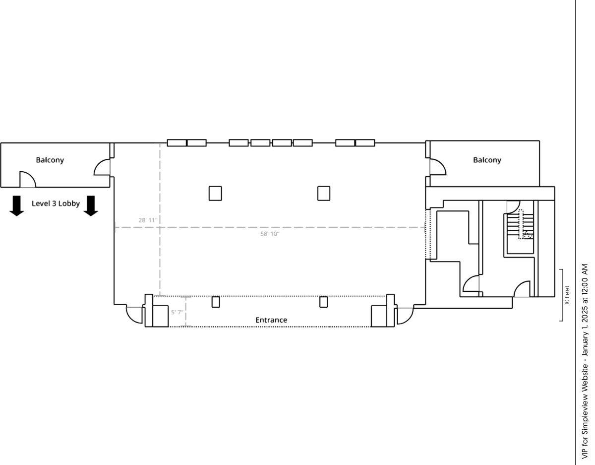
Level 3